Sold

DUAL LIVING OPTIONS 2.5 ACRES DREAM SHED

Buyers looking for a unique and special property should inspect this property.

Perfect large family country home on low maintenance acreage just minutes from Fernvale and an easy 20 minutes to Ipswich.

This beautifully presented five bedroom residence is large enough to accommodate the growing family or extended relatives over two levels of pristine living.

Orientated to the East ? the home offers privacy and unrestricted rural views to the surrounding farms and mountains. The list of features, and the quality of the finishes, is impressive and will satisfy buyers who love entertaining family and friends in a relaxed country retreat.

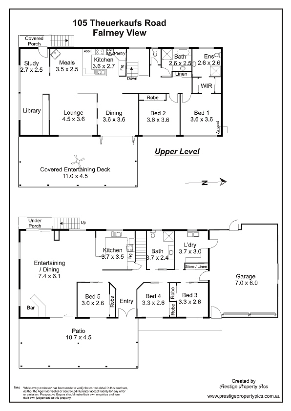
Downstairs:
* Spacious open plan living area perfect for visiting or fulltime extended family
* Featuring full sized kitchen and open plan dining area
* Lounge area opening to large undercover east facing patio
* Handmade timber and mini orb bar (with plumbing) perfect for entertaining
* Large and tastefully finished bathroom (ideal for wheelchair access)
* Three good sized bedrooms ? all with built-in robes.
* Dream laundry large enough to service both upstairs and downstairs

Upstairs:
The living area flows seamlessly between spaces that fulfill every requirement:
* Large central lounge area ? polished hardwood floors throughout
* Separate formal dining area with bi-fold doors opening to front deck
* Modern kitchen with dishwasher, gas cooking and breakfast bar
* Informal dining area off the kitchen with combustion fireplace
* Flowing to the office and library wing with its own deck access
* 14m x 6m front east facing covered deck offering park-like views all around.

Two large bedrooms and two bathrooms fill the rest of this light filled home upstairs
* Master bedroom with walk-through robe to airy ensuite with double vanity
* Large second bedroom with built-in robes
* Family bathroom with separate shower and separate bath
* Ducted vacuuming throughout.

Outside the established trees and gardens add substance, texture and shade to the immaculate and low maintenance 2.5 acre allotment.

Car and caravan accommodation is provided in the main house and parking for approx 16 vehicles is available in the massive eight bay colourbond shed with full length carport.

Rates are low at approx $900 per year. Your water needs are covered with over 40000 litres of tank capacity plus unlimited high pressure rural water (at an affordable $210 bi-annually).

Whether you are looking for a spacious family home to accommodate growing teenagers or extended family or to generate an income - this property will fit the bill. Located at the gateway to the Brisbane Valley, Mount Glorious, Wivenhoe and Somerset Dams and numerous character filled country towns.

Features

Fireplace
5 4 17 10,000 m2
Address 105 Theurerkaufs Road, Fairney View
Price SOLD
Property Type Residential
Property ID 42
Category House
Land Area 10,000 m2

Agent Details

Additionally, paste this code immediately after the opening tag: